Bündner Kunstmuseum
Crisp in design and compact in size, Barozzi/Veiga's Bündner Kunstmuseum is a starkly elegant, simple reinterpretation of its heritage neighbor, the Grisons Museum of Fine Arts in Switzerland.

The extension is a tall, rectangular prism that commands its site in the center of Chur. Surrounded by a vast plaza, it stands as a solitary volume amidst a cluster of historical buildings. In this context, the Bündner Kunstmuseum reads as a stoic and contemporary form – it is bold, unforgiving and unashamedly new.
Yet for a structure that is so immediately impressive, the Bündner Kunstmuseum is surprisingly sensitive in its reading of context and architectural lineage. Described by the architects as ‘an exercise of integration within an urban ensemble,’ the building slowly reveals itself as a considered reinterpretation of this place and its history.
The Bündner Kunstmuseum forms a companion to the existing gallery, which is contained within a grand, nineteenth-century house. Together, these two buildings – new and old – work in dialogue to form the new museum.
Formally, Barozzi/Veiga borrow from the old to inform the new. In contrast to its warm, and classically familiar, neighbor, Barozzi/Veiga’s extension is a monolithic mass – proud, silent and subdued in its use of concrete. Yet subtle gestures bring the pair together. For instance, the new base picks up on an existing datum line, tying the buildings into one another at street level.
Above this, the Bündner Kunstmuseum is clad in an ornate, custom-made concrete tile. Each tile is pressed with inset squares, which reference an oriental pattern that relates to the museum’s origins. These elements act as a contemporary ornament, giving the Bündner Kunstmuseum the quality of a measured yet crafted object.
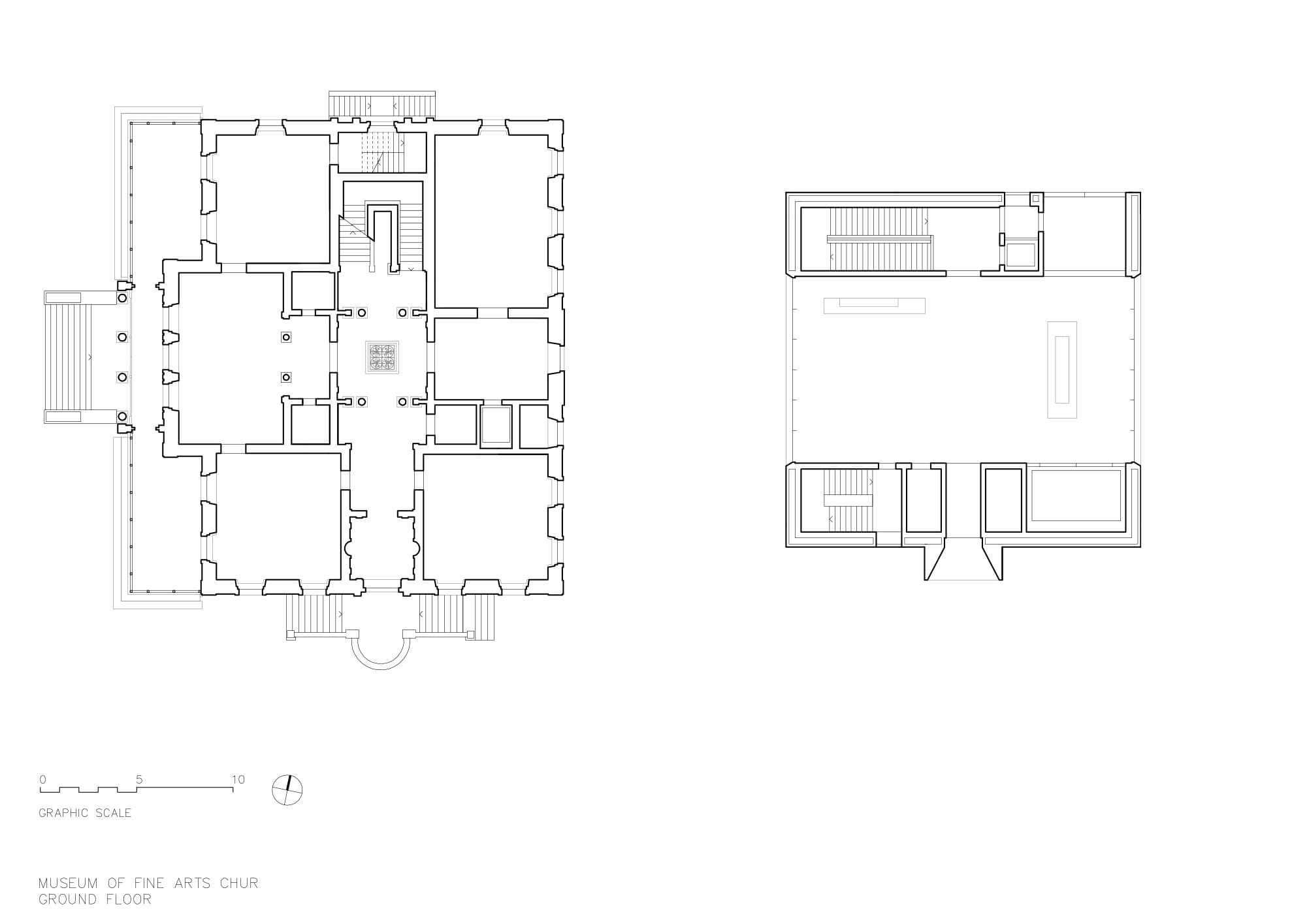
The new Bündner Kunstmuseum sits several stories above ground and one below. A café and the permanent collection are contained in the old house, while the new extension holds temporary exhibitions and public functions. The entrance to the new building is through an oversized puncture that leads visitors into an open space with a shop and ticket counter. A ceiling decorated with delicate fins of steel disperses light and adds texture to this space.
Counterintuitively, the experience of the gallery begins by going downward. A concrete staircase, lined with chunky steel handrails, guides the hand. Light is limited and the atmosphere is grey, grey, grey.
Things lighten up in the galleries, which are neutral but serene. White rooms, with aggregate-flecked concrete floors, are arranged in a formal succession. Movement is linear and symmetrical, taking place around the central locus of the stair. This axial composition nods to the traditional layouts in the adjacent building.
Barozzi/Veiga’s interiors are quietly simplified, stripped of ornament and fuss. The galleries are spare and uncluttered, with room to wander and think. Detailing throughout is unobtrusive. The entrances to the toilets are barely noticeable, disguised behind flush, inset doors that only reveal themselves with a pencil-thin shadow line. Signage is minimal, used only when required.
The transition into the old building is via a high, slender stair, which lets in glowing light from above. Emerging into the nineteenth-century house, the deliberate contrasts adopted by Barozzi/Veiga are made even clearer. The lavish interiors and rich colors seem almost cacophonous after such a neutral backdrop.
But this is all part of a pairing which leads to an appreciation of both buildings. The vastness of the new galleries contrasts the intimacy within the original. Likewise, the cool, crisp new palette deliberately offsets the decorative, sumptuous old rooms.
Barozzi/Veiga’s Bündner Kunstmuseum is a proud partner to its existing companion. It takes the two basic elements that define both of these buildings – formal structure and ornament – and renders them to their most pure and elemental. In this way, the Bündner Kunstmuseum is at once elegant and ornate, contemporary and classical.
Overview
- Built 2016
Who
Architect
- Barozzi Veiga
What
Type
- Culture
Where
Address
- Bahnhofstrasse 35, 7000 Chur, Schweiz
Similar places

Vikingeskibsmuseet: Udskældt mesterværk i forandring

Moesgaard: Bygget som en udgravning

Operahuset i Sydney: Skandale endte som verdenskendt vartegn

Den Uendelige Bro: Gåtur på vandet

Badeanstalten Spanien: Skærmer fra byens stress og jag

Dokk1: Samlingssted på havnen

Aarhus Teater: En forestilling i sig selv

KØN: Museum om krop og kønskultur






