Esbjerg Performing Arts Center
The Esbjerg Performing Arts Center is the result of a close collaboration between Jan Utzon and his father Jørn Utzon.

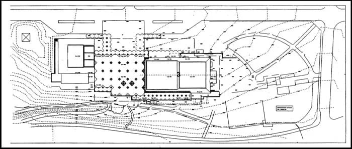
The Performing Arts Center in Esbjerg, a harbor city on the rugged west coast of Denmark, is situated in the City Park next to the Art Exhibition building, with a wide view over the harbor and the sea.
You approach the building and the Foyer, which connects the Art Museum and the Concert Hall, along a slightly sloping street leading from the City Square. The light and airy Foyer, with its tall slim columns behind the polygonal window panes, is like an open room in the city.
"Our intention was to design a building complex that, together with the city park and harbor area would create a festive frame around the artists and the audience; a building that architecturally would give Esbjerg a new identifiable element in the city."
The Plaza in front of the Foyer, shielded from the strong western wind, is where outside activities take place. The covered colonnades, with the row of columns on both sides of the Plaza, make it possible to reach the Foyer from the harbor without getting wet. From the Plaza one glimpses the harbor and the sea through the Foyer.
The slender columns form a striking contrast to the massive building mass, which houses the stage's fly tower and concert hall. The Concert Hall facades, clad in white ceramic tiles, reflect the shifting nuances of color from the sky and the surrounding trees. During the transition between day and night, the large volume almost seems to defy gravity.
The white “Sydney” tile, only 12×12 centimeters in size, has a surface like hammered silver and a slightly transparent glaze, making it especially suitable to reflect the sky’s fine nuances.
In the 1960s, when Utzon was working on the Sydney Opera House, he spent a lot of time finding the right tiles to cover the 60-meter-tall shells. During a study trip to China, he found a fragment of a ceramic tile that had the qualities he was looking for. From this piece, he designed a prototype — the “Sydney” tile — which was produced by Höganäs, Sweden.
Nature has always been the fundamental inspiration in Jørn Utzon's work — the simple form of language with the repetition of the elements.
The design of the entrance Plaza and Foyer, inspired by the trees in the surrounding City Park, is formed as a forest of “mushroom” columns that organically tie the various functions together. The columns are designed as prefabricated concrete elements, with the upper parts made of steel, wood or plate construction.
The white color of the ceramic tiles gives a composure to the Foyer space, where Utzon’s characteristic dark blue tiles are used as a decoration on the slightly sloping walls, and also to mark important functions.
The Foyer gives access to the Theater and Concert Hall on one side, and the Cafeteria and Art Museum on the other side.
The interior of the Concert Hall, with its muted colors inspired by autumn, offers a striking contrast to the white foyer.
The auditorium seats 1.100 and is acoustically prepared for symphonic music: a large volume with a long reverberation. The volume of the auditorium — as well as the acoustics — can be regulated by moving the curved ceiling elements. When used as a theater (seating 850), the reverberation is reduced by lowering the ceiling and thereby reducing the auditorium volume.
For conferences or other arrangements, the rows of chairs are moved to the back of the auditorium, leaving the entire floor area open.
The orchestra pit can be raised to stage level, creating a larger stage, or to floor level for a larger floor area facing the stage.
In addition, there is a smaller hall for chamber music and children’s theater, and a small auditorium for lectures. An open space in the Foyer can be converted to a stage with mobile pedestals and platforms.
People are always at the center of any design decision by the Utzon father-son team. At the Esbjerg Performing Arts Center, the structure of the building — the architecture — becomes the framework around its activities.
Overview
- Built 1997
Who
Architect
- Jan Utzon
- Jørn Utzon
What
Type
- Culture
Where
Address
- Havnegade 18, 6700 Esbjerg
Similar places

Vikingeskibsmuseet: Udskældt mesterværk i forandring

Moesgaard: Bygget som en udgravning

Operahuset i Sydney: Skandale endte som verdenskendt vartegn

Den Uendelige Bro: Gåtur på vandet

Badeanstalten Spanien: Skærmer fra byens stress og jag

Dokk1: Samlingssted på havnen

Aarhus Teater: En forestilling i sig selv

KØN: Museum om krop og kønskultur






