Photography Studio for Juergen Teller
6a architects’ Photography Studio for Juergen Teller is a meditation on pure form and parsimonious materiality.

The design for the maverick fashion and fine-art photographer Juergen Teller, led by 6a architects’ director and co-founder Tom Emerson, comprises three staunch concrete pavilions in West London, with atmospheric intersecting gardens designed by Dan Pearson Studio. The resultant architecture provides an ideally flexible backdrop for Juergen Teller’s genre-bending photographic work. Emerson has explained his own surprise at Teller’s inventive interactions with the building, stating of Teller that “he has used the building in ways we could never have anticipated, but there is nowhere that is not a place to take photographs. It is all studio and no studio.”
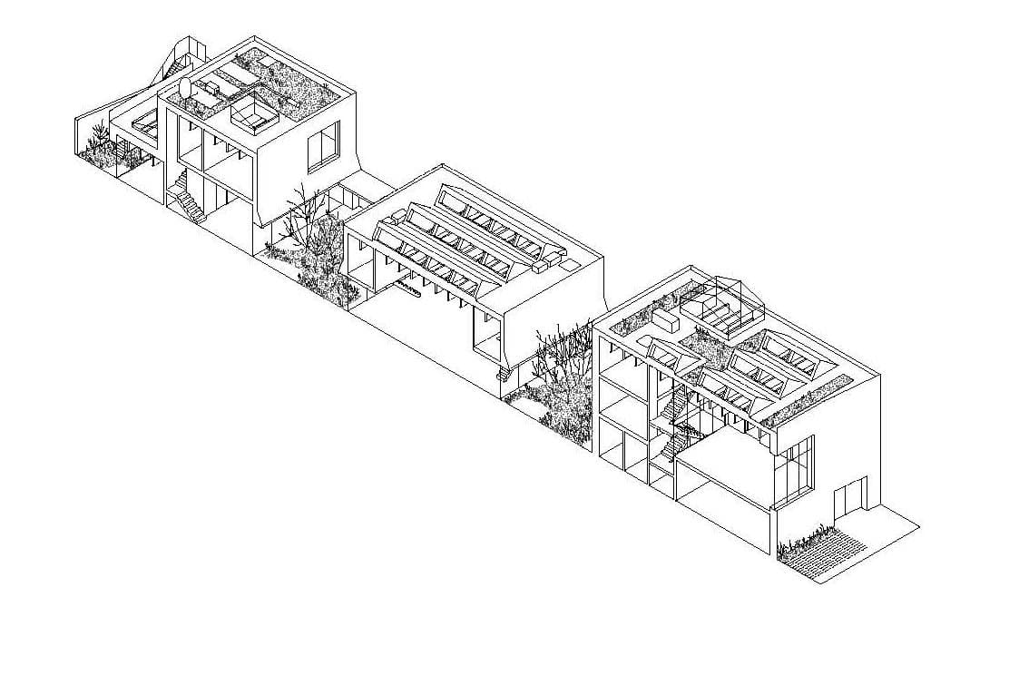
Juergen Teller's studio occupies a slender 60-meter-deep block in suburban West London, consisting of a series of three individual pavilions containing offices, archival storage, an expansive, flexible studio space, a kitchen, library, and recreational rooms including a yoga studio. The pavilions are intersected and separated by internal courtyard gardens designed by award-winning London-based horticulturist and garden designer Dan Pearson. The programmatic zoning of the pavilions utilizes these courtyard gardens to create a sequence of increasingly private interiors as one travels through the built-forms towards the rear of the plot and away from the street frontage. Each intersecting garden ‘room’ is planted with deciduous trees and climbers, inspired by the vegetation found locally in some of the more derelict corners of London.
6a architects’ design employs a parsimonious and subdued material palette, with structural elements carefully selected for their longevity. Strikingly, the pavilions are for the most part constructed from concrete cast in situ, carefully textured using disused timber shutters to match the height of a regular course of London bricks. The neutral, weathered greys of the concrete and masonry are complemented by faded-grey timber window frames and detailing. Additionally, each pavilion contains glass doors that almost run the width of the site, blurring the boundaries between interior and exterior spaces. Finally, the stark interior surfaces are accented by select brass flourishes, including handrails and custom-made brass doorknobs.
Behind the austere façade, Photography Studio for Juergen Teller employs passive thermal strategies that result in enviable, far-sighted environmental performance. Each pavilion is passively ventilated and triple glazed to mitigate unwanted energy fluctuations. Active strategies also include photovoltaic panels to the south and heating and hot water supplied by the solar thermal panels. It is impossible to overstate the significance of thermal mass and insulation in the environmental strategy for the studio, with loadbearing walls 66,5 cm deep, including a middle layer of 30 cm insulation. Similarly, floors and ceilings all contain intelligently over-specified insulation.
The natural lighting requirements for the Teller's photography studio also posed some challenges for the 6a architects design team. These were overcome by positioning roof lights to face north, thus allowing diffuse skylight, but limiting direct sunlight with concrete structural beams that span the width of the ceiling. 6a architects also teamed up with acclaimed, environmentally focused engineering firm Max Fordham, employing a ‘fabric-first’ approach to achieve exceedingly high passive thermal performance. Laurence Owen, partner at Max Fordham, suggests that: “the point of fabric-first is that you’re designing for a lifespan of 50, 100, even 200 years. The aspiration is for this building to go on and on. We’ve reduced demand to negligible for heating and zero for cooling.”
Recognition for 6a architects’ Photography Studio for Juergen Teller has been widespread and comes right at the heels of the 2017 RIBA East Award for their Cowan Court project at Churchill College, Cambridge. The tally for 6a architects’ Photography Studio for Juergen Teller includes acknowledgment on the shortlist for the 2017 New London Award, and winning the 2017 RIBA London Building of the Year and the 2017 RIBA National Award. The project has also been shortlisted for the highly prestigious 2017 RIBA Stirling Prize. In summing up the ambitions for this project, 6a architects’ Tom Emerson has stated that, “we and Juergen were very keen to reach the best environmental performance in a building that is easy to use inside and out. Sustainability is embedded without explicit expression and, rarely for us, was built without compromise. Teller was committed to the end.”
Overview
- Built 2016
Who
Engineer
- Max Fordham
Client
Architect
What
Type
- Commercial
Where
Address
- Ladbroke Grove London Storbritannien














