Streetmekka Viborg
In collaboration with the nonprofit street sports organisation GAME, architecture studio EFFEKT has repurposed an old factory building in Viborg into a hybrid between sports facility and cultural house.

The resulting project is robust enough to remain open 24 hours a day, enabling its users to take charge without supervision, and was shortlisted for the Mies van der Rohe Award.
The original building originally served as a windmill factory and exists as an archetypal example of the many warehouse and factory buildings from the late 60s and 70s. These buildings are leftovers from an industrialized era that unfolded in almost every city in the western world; the identical imposing structures are still present as physical markers of industrialization. It is when these buildings become empty that their latent potential is shown, as the magnificent scale and almost cathedral-like proportions kept within robust shells of concrete and steel. The negligible historic, cultural or architectural value of these buildings presents an opportunity to give new meaning, architectural value and history to the concrete structures and their brutalist detailing. With such a building presenting itself for rehabilitation, the question for architecture firm EFFEKT was how were they going to convert, re-utilize and re-program this type of building typology in a qualitative way.
EFFEKT wanted the occupation of the building to support a mission to attract local youth and create lasting social change through street-sports and culture enabling. The programmatic framework is therefore specifically designed to accommodate this mission where spaces are designed to fulfill individualized or self-organized alternatives to established club sports and cultural activities. These include new spaces for practice, parkour, basketball, skating, bouldering, dance and also customized workshop areas for DJ’ing and music production, an animation studio, maker lab, social spaces, hangout zones and artist studios. The purpose of including so many different activities is to foster the idea of co-existence – leading to new synergies and new social relations. Additionally, it exposes visitors to new types of activities they might never have realized existed, encouraging future engagement.
To the west of the site is an identically sized warehouse with a single entryway splitting the two buildings, resulting in a desolate non-place in between. The spaces adjacent to the warehouse are largely concrete and inactive, isolating the building and creating an uninviting ground plane. The ultimate aim was to draw a broad demographic audience to the new Streetmekka and to do this by responding with an open and welcoming building, lowering the threshold for involvement and engagement.
Resolving this agenda becomes visible on the perimeter. Its lofty exterior, which has historically acted as a barrier between exterior and interior, is broken down. With the prefab concrete panels removed, it is replaced with a translucent polycarbonate skin that wraps around the entire project. Tempering light between the exterior and interior, the polycarbonate exhibits a hazy outline of the thick concrete pillars and I-beams behind whilst showcasing vibrant activities within. The east and west entry facades have been completely removed and replaced by glazing, creating a grand and controlled vista through the building and between the entry and exit points of the site. The overall palette is light, simple, and open, showcasing an anti-elitist, modern and robust form that encourages usage through its visibility. This new façade facilitates a second use, in that local artists, have been curated so that their work can be displayed or projected onto it.
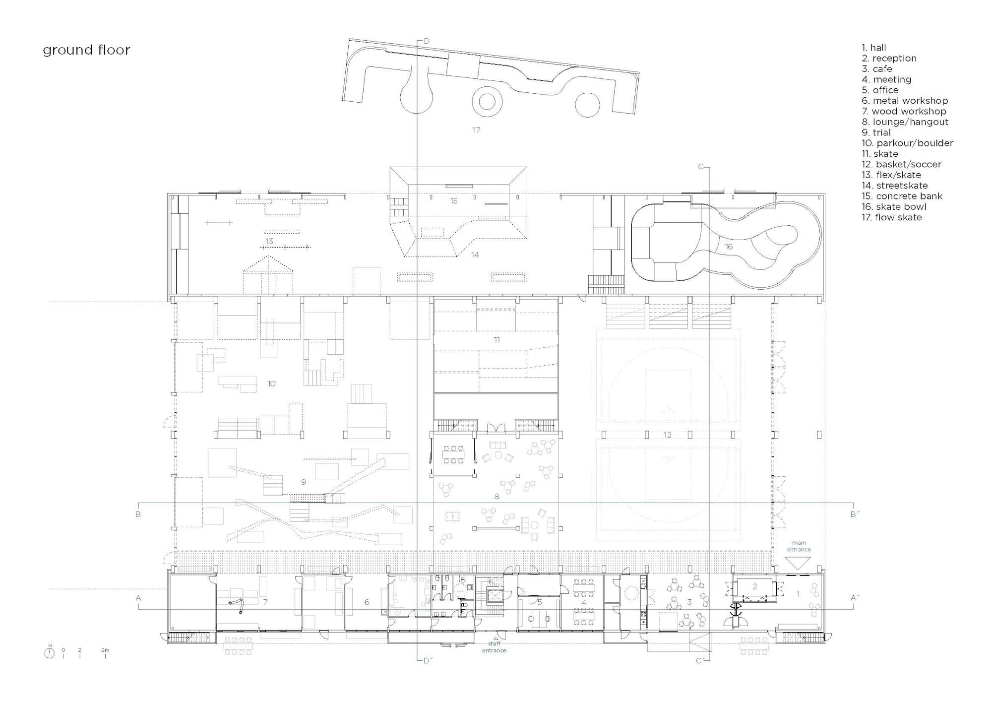
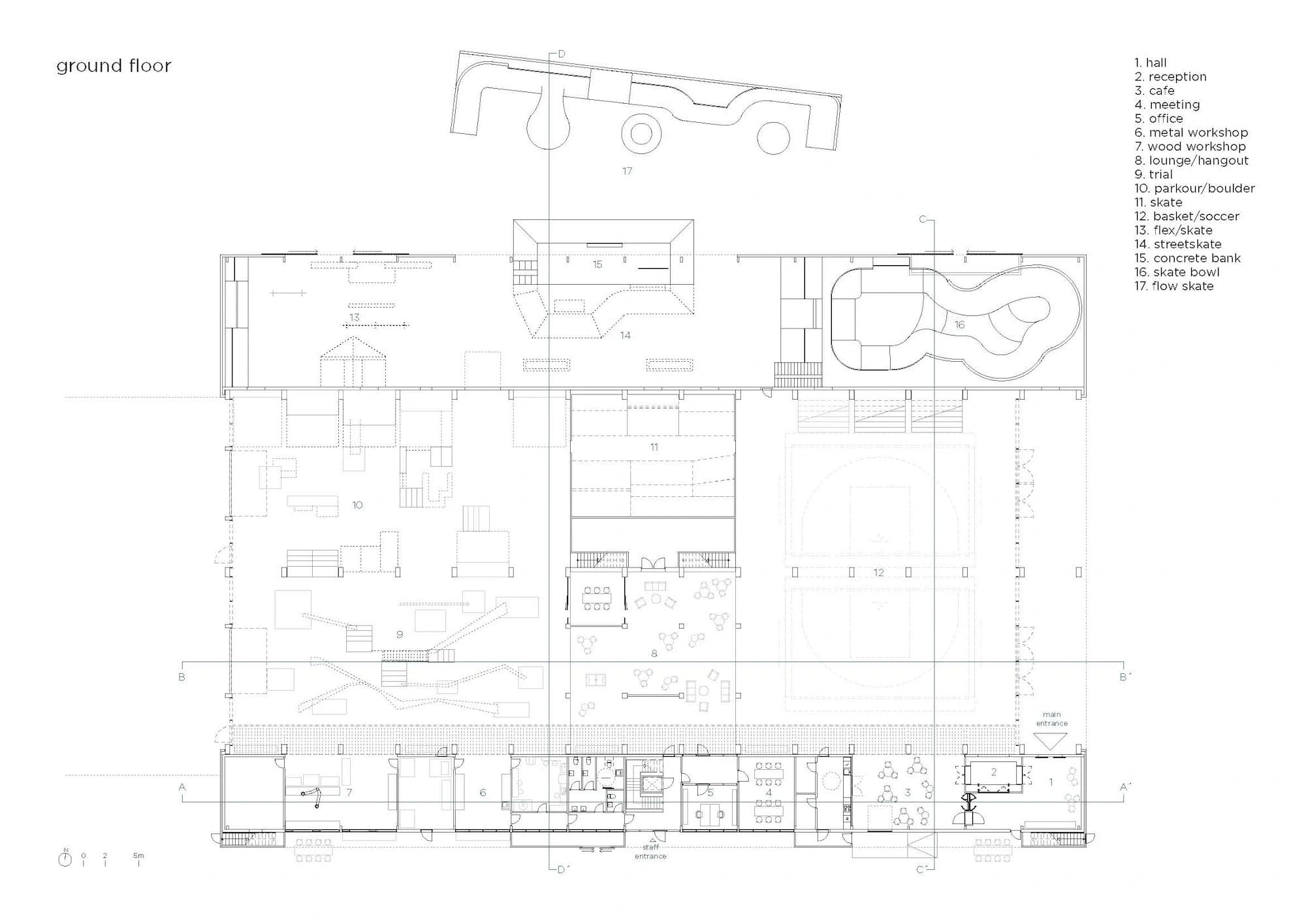
The programmatic organization is based on a key concept centered on the idea of transforming both the exterior vastness and the sizeable interior into a blended indoor and outdoor streetscape. Where the project opens up the introverted skeleton through two new glass facades, an internal arcade begins and ends. This arcade is located in the impressive central production floor that has mostly been maintained to allow for a variety of fixed and moveable spaces: parkour, bouldering, basketball, soccer, skating, and a lounge/hangout zone. Also within this space are customized workshop areas for music production and DJ’ing, an animation studio, a fabrication lab and various artist studios, and wood and metal workshops. These zones have been laid out and arranged in relation to their specific requirements, such as spatial quality, daylight, materiality, and temperature zones.
Utilizing the gridded concrete structure of the building, the north and south facades have been fitted with two floors of new wooden and concrete partitions that divide and enclose spaces to house a variety of other activities. The second floor of spaces juts out to the center of the production space to engage and watch over the interior. The north side is designated for skate-areas, opening up the larger section of the landscape, and the south conveniently holds all the administrative facilities in one strip. The ground floor spaces – depending on their intended use – can be opened up to the new exterior ground plane or remain open to it, blurring the perimeter to engage the surrounding landscape.
The surrounding landscape then becomes the natural extension of the indoor surface, with various street-sports and cultural functions placed in a recreational string of greenery that connects the site to the downtown area through a future pedestrian and bicycle path. As part of the rehabilitation, a lot of the building's original components were repurposed as furniture elements as well as objects to equip the parkour and skating activities outside.
EFFEKT’s design for a new Streetmekka repurposes and skins the dilapidated archetypal windmill factory to engage the cathedral-like interior of the space. Dispersing program around its perimeter and preserving the production space for the creation of a novel internal streetscape, the building surveys its own activities and offers a new connection out towards the landscape. The new performative polycarbonate skin wraps the exterior, creating the appearance of a light and welcoming building that showcases the exciting activities within and the beautiful industrial details of the building's past. The preservation of the original structure and the reuse and upcycling of materials made it possible to carry out the refurbishment at a very low expense. This inexpensive warehouse refurbishment offers the community a new refuge, sports hub, and a cultural center that encourages lasting social change through street-sports and culture-enabling. It is architecture for a community; a clever reuse, qualitative design thinking, and simple detailing have created a building to empower a generation’s future.
Overview
- Built 2018
Who
Collaborator
- GAME
Architect
What
Type
- Culture
Where
Address
- Marsk Stigs Vej 12, 8800 Viborg
Similar places

Vikingeskibsmuseet: Udskældt mesterværk i forandring

Moesgaard: Bygget som en udgravning

Operahuset i Sydney: Skandale endte som verdenskendt vartegn

Den Uendelige Bro: Gåtur på vandet

Badeanstalten Spanien: Skærmer fra byens stress og jag

Dokk1: Samlingssted på havnen

Aarhus Teater: En forestilling i sig selv

KØN: Museum om krop og kønskultur








