The House of the Arts
The House of the Arts, a destination for art creation designed by Svendborg Architects and housed in the former military barracks of Kildegården, is a key element in a new cultural campus in Roskilde.

In 2016, Svendborg Architects, landscape architects BOGL and engineering firms Regnestuen and Spangenberg & Madsen won a competition for the masterplan of Kildegården and House of the Arts in Roskilde, Denmark. Kildegården is a former military barracks that has now become a campus for culture, leisure, sport, and student residences. With the new masterplan, the area’s existing urban structure, ancient trees, and materials remain while new facilities and urban spaces create strong connections to Roskilde’s historic city center.
House of the Arts is located in the middle of a new central square, a significant destination in Kildegården with a single paving system that defines its importance. The building is placed adjacent to two new urban spaces, The Event Circle and The Dancing Scene, as a cultural epicenter in the area. The central square creates hierarchy and coherence in the barracks’ urban structure, with the House of the Arts as a key component of the new urban landscape.
As the main square, the House of the Arts functions as a unifying space in Kildegården.
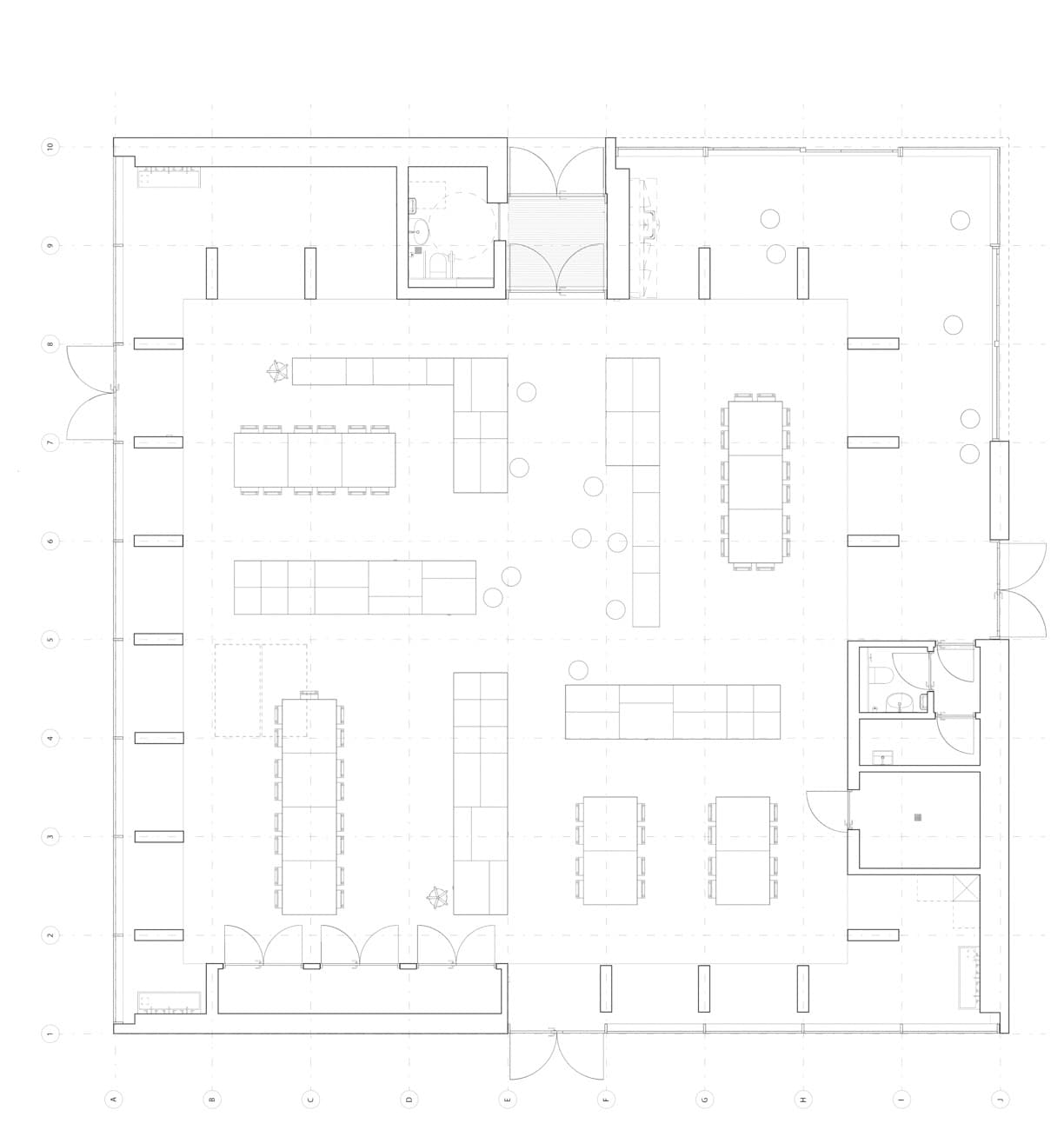
The building’s floor plan is a perfect square; its roof slants from the front to almost seven meters in the back. With its unusual shape, the building mediates between the scales of the surrounding barrack buildings and a lower scale towards the main square. It stands out as a central point in Kildegården that people in the area can orient toward.
The concept of the House of the Arts is to bring practicing artists and the public closer together. Therefore, the building consists of a single, square room without interior walls that functions as a meeting point for both creating and enjoying the arts. Different events will take place in the art house during the year, and as it will be run by the local community, the facilities will be open to the public to encourage free and experimental use.
On the outside, the exterior roof and walls are coated with specular, red-nuanced aluminum sheets that reflect and distort their surroundings. The shining surface and color tone brings a modern touch to the square while still relating to the red-brick houses of the existing Kildegården campus. In this way, the building both stands out in terms of its geometry and materials while also managing to subtly blend into its surroundings.
While the color scheme on House of the Arts’ exterior relates to the existing barracks, the inside of the building functions as the white canvas of a painter, allowing the artistic activities to 'paint' the current atmosphere of the room. The different art forms are able to leave their mark on the space, and actual drops of paint color have already dotted the bright concrete floor, creating a collection of traces over time.
The large main room can be subdivided into different spaces with movable furniture. This makes the space suitable for many different occasions, as its elements can be rearranged and fit into a range of different functions, from painting and sculpture to music, performing arts and larger events. The ceiling, furniture, and movable walls are all clad with acoustic panels that absorb sound to enhance concentration.
The roof is a single, rising surface that culminates at the top in a large skylight, shedding daylight on the back wall. The indirect light creates a calm and pleasant atmosphere and optimal light conditions for creating art. Along the walls, large window openings connect the building seamlessly with its outdoor areas while bringing plenty of light inside. Along with the windows, façade columns create divisions in the large room where people can practice the different artistic disciplines, while the equipment can be stored and arranged so the artistic processes are visible from the outside.
The house is designed to have no front and back but is predisposed so that the main entrance faces the central square, from where the wardrobe, kitchenette, and bathroom facilities are also located. Since the building is on the same level as the surrounding urban spaces, the boundary between inside and outside becomes blurred and encourages a flowing relationship between the activities inside and outside the building. Thus people are drawn into the new, inviting cultural center, while its artistic creations come closer to the visitors of Kildegården and the residents of Roskilde.
Overview
- Built 2018
Who
Landscape architect
- BOGL
Architect
What
Type
- Culture
Where
Place
- Roskilde
Address
Similar places

Vikingeskibsmuseet: Udskældt mesterværk i forandring

Moesgaard: Bygget som en udgravning

Operahuset i Sydney: Skandale endte som verdenskendt vartegn

Den Uendelige Bro: Gåtur på vandet

Badeanstalten Spanien: Skærmer fra byens stress og jag

Dokk1: Samlingssted på havnen

Aarhus Teater: En forestilling i sig selv

KØN: Museum om krop og kønskultur






