Amado House
Amado House is a beautifully refurbished Essendon period house that has been sharpened against the junction of a new pavilion.

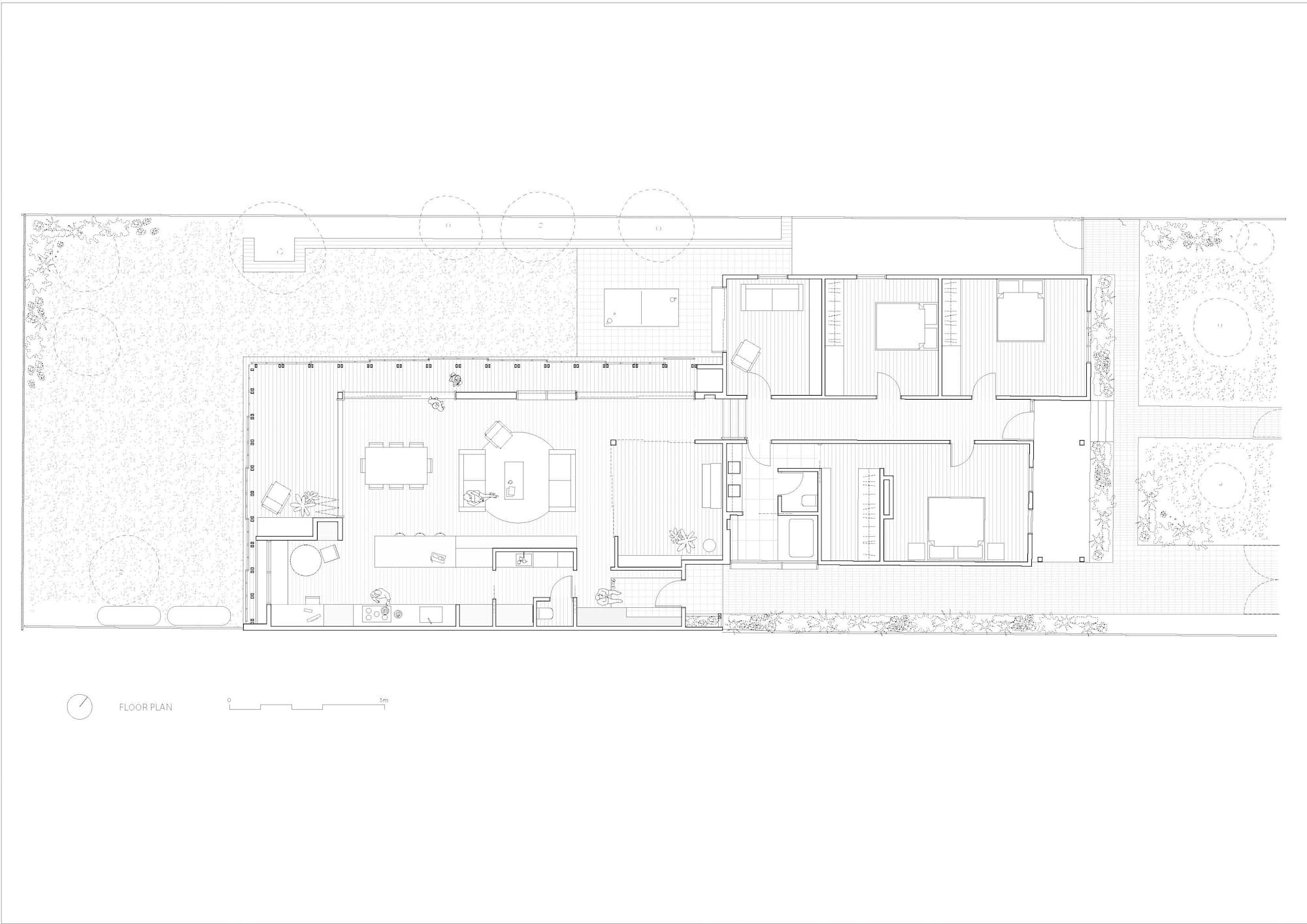
The house's familiar practical form is moderated and broken down by the very name it gives itself: "amado", the external sliding timber screens used on Japanese traditional houses to protect the softer more fragile layers of shoji paper screens from the weather. It also makes reference to the engawa (traditional Japanese verandah) which refers to the timber flooring that runs between the shoji screens and the external perimeter. The new pavilion operates within the elaborate layering of the amado influence and a reinstated and playful use of the interstitial space (engawa) between the garden and the pavilion. Its large, lofty form is carefully dissected into elements and layers that allow a finely tuned operability as well as proposing readings of where the qualities of the old are framed respectfully against the junction of the new.
The site in Melbourne is blessed with good orientation, and the new perimeter of the pavilion is optimized to take advantage of this. The edge of the pavilion is comprised of framing lines that move inwards to create the amado and engawa layers. These sliding layers of the skin allow the owner to operate the house with principles of cross ventilation in mind, and allow the house to absorb, adapt and acknowledge the changing weather and daily circumstances. The sliding screens provide external protection while allowing for a playful interpretation of the in-between and one's enjoyment of the layered spaces in all weather conditions, be it a light breeze with the sun peering in, a shielded and shaded interior, or skirting in and out freely along the layered perimeter, occupying the garden’s edge.
The interior is characterized by the external screens and projects itself out into the external spaces. Timber ceiling boards and expressed timber roof framing soften the space and allow for places to drink tea or wall recesses for treasured objects that contrast the practical shell and augment the pleasure of being at home. Reflecting the ceiling, wooden floorboards seemingly transition at the same floor level to their equivalent of timber decking outside. The operable perimeter is defined even more by a step that encourages one to both move freely between but also to reflect at its edge.
The high-pitched roof, which appears not to have any eaves from the exterior, provides plentiful amounts of shading to the north and west glazing lines. This initial form of sun protection is softened and tempered by the perforated wall cladding that forms the upper datum of the exterior skin. This cladding admits light in at a high level, which inside, is now reduced, indirect and softened. Externally it is reversed and appears solid but also helps control the height of the space by the datum that is created in pulling the roof sheeting down the walls to meet the operable layers below. At nighttime the role of the cladding is cleverly reversed; via up-lighting, it becomes vibrant and translucent from the exterior.
The Amado House is a beautiful pavilion that addresses Australian conditions, tempers light and balances both shelter and transparency. It is light, warm, inviting and playful without excess. Its size has been cleverly controlled and the use of materials has not only adapted its roofscape to its proximal equivalents but created an internal pleasure that dissolves into the garden it frames. As a suburban addition, it has created a new dialogue within the utilitarian brick-and-weatherboard-heavy periphery of Melbourne, and so successfully contributes a new character and typology to both the area and the future of an increasingly built-up environment found in the backyard and stitched to the old.
Overview
- Built 2017
Who
Architect
- MAKE Architecture
What
Type
- Residential
Where
Address
- Essendon Victoria 3040 Australien













