Drivelines Studios
In a time where shipping containers have almost become an architectural cliché, LOT-EK somehow manages to use this industrial object with integrity and relevance.

Drivelines Studios is not a revolutionary or visually jaw-dropping building. But sometimes, less really is more. Founded in 1993 by Ada Tolla and Guiseppe Ligano, and currently based between New York and Naples, LOT-EK approached Maboneng, the site for their Drivelines Studios project, with the utmost sensitivity. In a precinct dominated by young entrepreneurs and creatives, livability, affordability, and community are to be prioritized above all else. With their minimal design and construction, Drivelines Studios units can be sold for as low as 120,000 Rand (just above 7,600 Euros), or rented at 3,900 Rand (248 Euros) per month, in an area where most apartments require a monthly payment of at least 5,000 Rand.
Johannesburg is often perceived as one of the most dangerous cities in the world, with its inner-city area historically being one to stay away from. With a phase of social and political transition in 1994, following the end of apartheid, came a period of heightened uncertainty and unrest; crime rates grew in the city. As a result, many businesses and individuals moved out to Johannesburg’s suburbs, leaving its urban center free for squatters to occupy vacant buildings. Inevitably, precincts such as Maboneng took on a notorious reputation — but, as in many other big cities around the world, this unattractive neighborhood caught the attention of young creatives and entrepreneurs looking for lower rents and more freedom. And so Maboneng grew into a trendy ‘hipster island’ within the still-precarious center of South Africa’s largest city, the perfect testing ground for a large-scale experiment of LOT-EK’s contemporary industrial aesthetics.
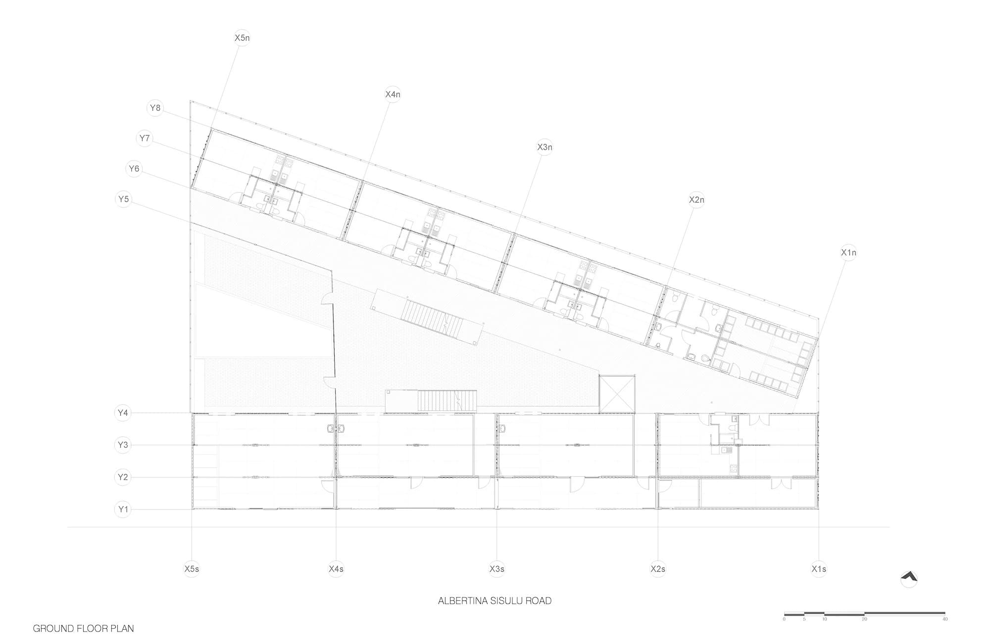
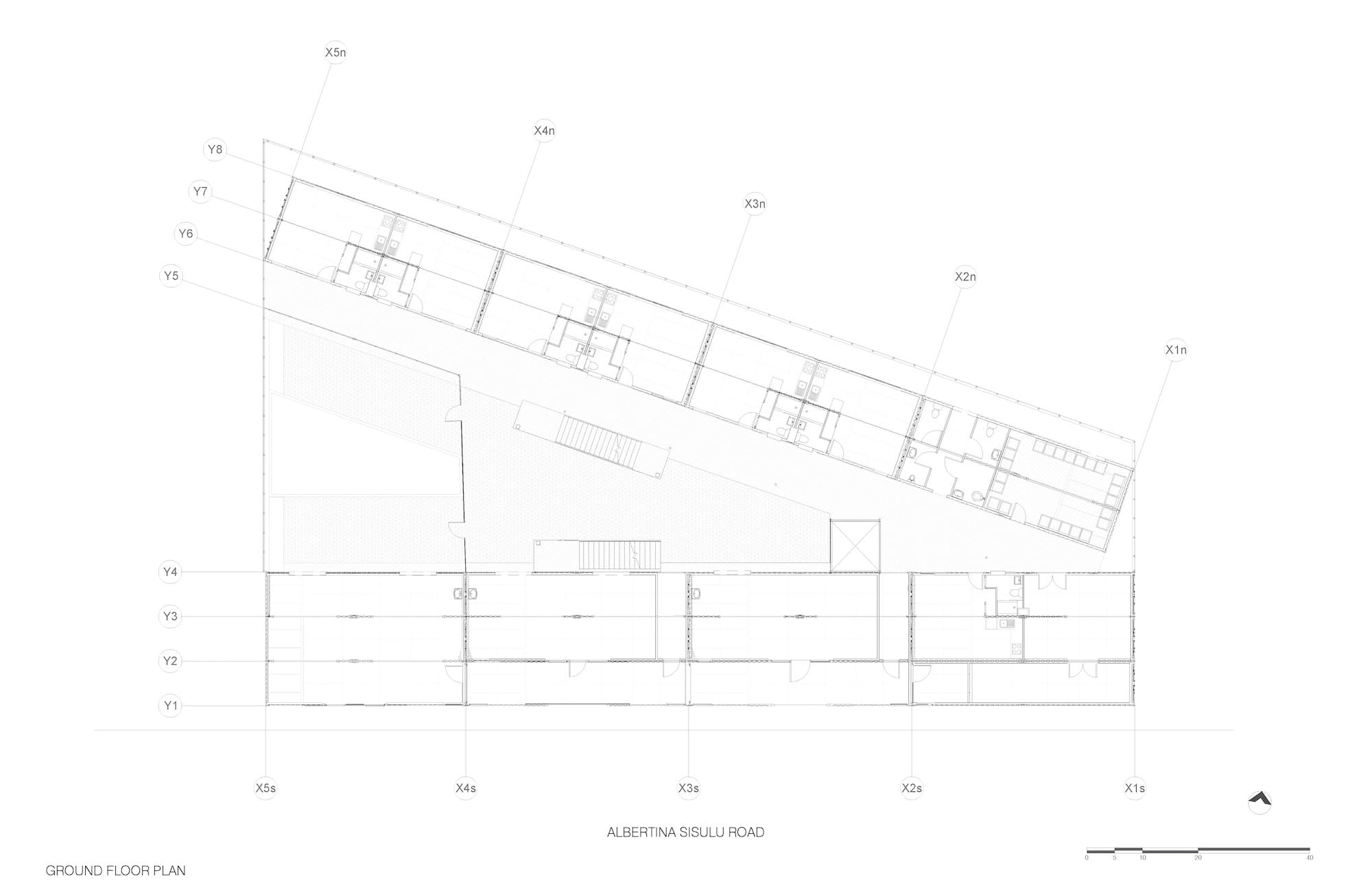
Drivelines Studios is situated on a triangular plot, which inspired the architects to develop a ‘billboard’ geometry consisting of two building volumes hinged together on one end, opening up to create an open inner courtyard. This is intended to be the collective social space for Drivelines Studios’ residents; all circulation is located along the inward-facing facades, including open staircases, bridges, paths and an elevator tower. The private studio units open directly out to the communal circulation paths, which LOT-EK hopes will allow for a ‘spillover’ of private life into shared spaces — an idealistic vision many architects wish for, albeit one that feels more likely in a neighborhood built on communal values. Drivelines Studios’ courtyard, including a shared pool, is kept private for its residents, but parts of the ground level are occupied by retail for the general public. Apart from that, the entire stack of shipping containers is dedicated to housing units, ranging from 28 to 56 square meters in floor area.
LOT-EK is a design studio that prides itself on values of sustainability and responsible building methods that exploit the properties of industrial objects not intended for architecture. Drivelines Studios seems to tick all of these boxes. LOT-EK designed the building to be left unpainted, selecting the 140 upcycled shipping containers by their colors and effectively allowing these industrial objects to dictate the architecture’s resulting character. The entire construction was stacked and cut on-site with a mirrored and repeated diagonal incision to create the building’s final façade pattern. Despite being a new addition to Johannesburg’s hipster quarter, Drivelines Studios feels right at home, embedding itself in current trends, neighborhood aesthetics, and a growing local population, while also wholeheartedly following the principles upon which Maboneng, the ‘place of light’, was built: community, livability, and valuing what already exists.
Overview
- Built 2017
Who
Architect
- LOT-EK
What
Type
- Residential
Where
Address
- 213 Market St, Jeppestown, Johannesburg, 2001, Sydafrika














