Nightingale 1
This innovative housing project in Melbourne proposes an alternative model of development, one in which homes are for "living in rather than investing in" and residents collaborate with architects.

By 2050 Melbourne will need at least 1.5 million additional homes in order to support its growing population. Developers are surging to fill this need, with apartments being built at unprecedented rates in the inner enclave of the city; however few deliver the amenities and quality of life associated with Melbourne’s reputation, instead of building dwellings made for ‘investing in rather than living in.’ While architects lament having to cede control to profit-hungry developers or resort to designing boutique homes for private clients that do little to address urban and social issues in a meaningful way, a group of architects in Melbourne is paving its own way to find solutions to the city’s housing crisis.
Nightingale Housing, a not-for-profit social enterprise headed by Breathe Architecture’s Jeremy McLeod, provides an alternative development model, with the mandate of providing medium-density housing in the city's inner suburbs, with a focus on community, affordability and environmental sustainability. In order to achieve these goals, well-designed buildings are only part of the equation — they come at the end of Nightingale’s holistic approach, which also oversees the project's procurement and funding, bypassing traditional developers altogether. Apartment buildings are financed by a collective of individual ‘micro-investors’ (in the case of Nightingale 1 this includes architects and homeowners), regulated through capped project profits and resale value in order to maintain affordable prices. Architects engage directly with owner-occupiers to create multi-residential developments for ‘living in rather than investing in’, resetting the developer hierarchy to support agency of the community that will live in these buildings, and the architects shaping it for them.
All Nightingale apartments maintain generosity and quality at relatively affordable prices through strategic cuts: no marketing budget, display suite, real-estate agents or developer profit margins. The architecture also saves by cutting out basement car parking, air-conditioning, second bathrooms, and individual laundries, while passive design principles and renewable energy sources keep running costs at a minimum.
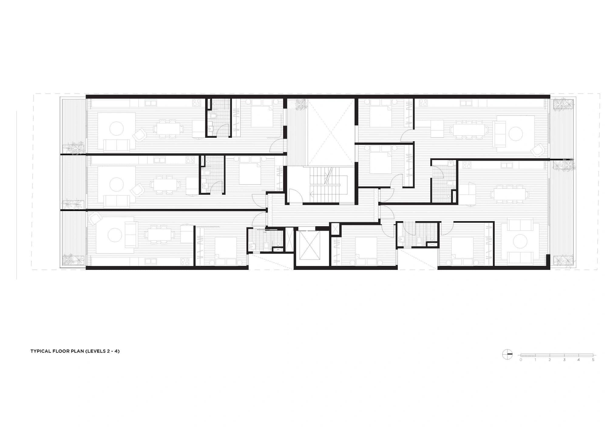
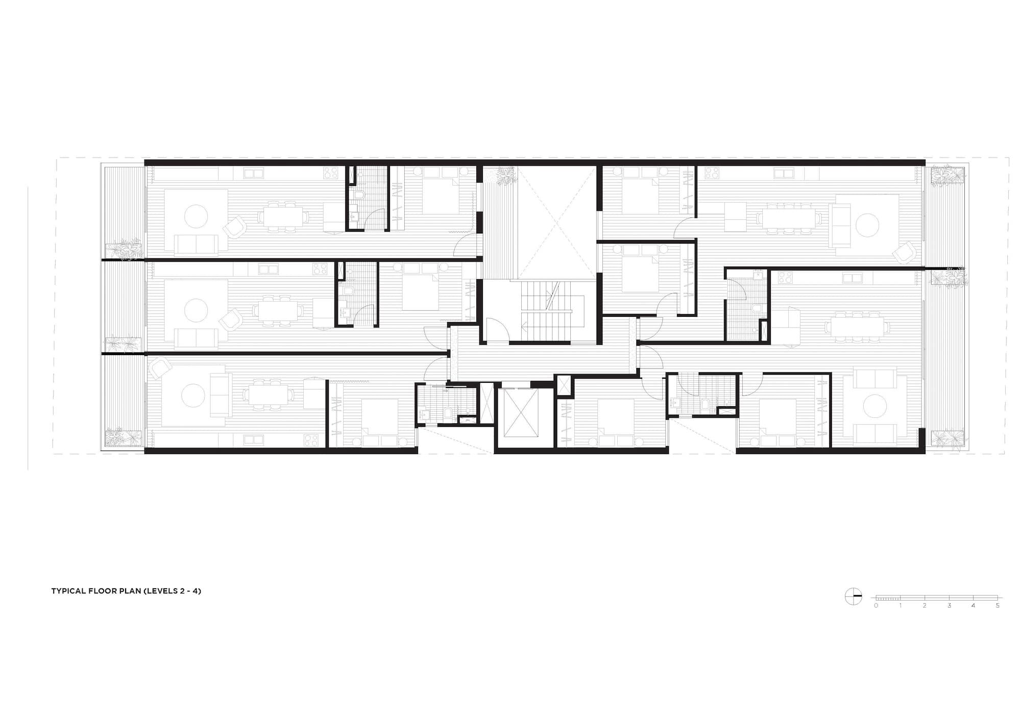
Nightingale 1 is the inaugural project of the Nightingale model and is located in Melbourne’s inner-city suburb of Brunswick. The street interface effortlessly fuses with its surrounding urban fabric through a cream-brick plinth with large orthogonal openings akin to the surrounding warehouses. The ground floor is a space for both residents and the neighborhood, with a semi-public walkway cutting through the floor plan and flanked by a café, an architecture studio and the headquarters of the Nightingale organization. A street-deck scattered with plants and seating by the side of the road is a welcoming social space for tenants and the public alike, capitalizing on the lack of car traffic on the dead-end street.
The apartments above hang off an open core, a central ventilated stairwell scaling a fernery on the ground floor. Each of the 20 one- and two-bedroom apartments has its own generous balcony. Those to the north look out over a shipping-chain screen for deciduous climbing grapevines, and those to the south are contained in steel-frame winter gardens, taking visual cues from the surrounding warehouse context.
The apartment interiors are dressed in a well-considered economical palette of recycled timber floors, concrete ceilings, exposed finishes, form-ply joinery, and concrete benchtops. Material consideration extends into the lift lobbies with natural Blackbutt-timber battens, mild steel plate, and inset coir-matting nooks.
The communal rooftop — the building's social heart — is generously planted and kitted out with a summer and winter deck, sandpits, a BBQ, a lawn, a vegetable garden, beehives and communal facilities including laundry, clotheslines and rainwater tanks. Residents gather and play on the rooftop, which boasts incredible views of the CBD and Brunswick, connecting back to the neighborhood from which the building draws so heavily.
Emblematic of the Nightingale ethos is the community of architects that has gathered around it. The intellectual property of the model is shared with other firms, making it a replicable model across Melbourne and Australia. Nightingale 1 is soon to be joined by the Nightingale Village: just a stone’s throw away seven new apartment buildings will be constructed as a collaboration between some of Melbourne’s best architecture firms. What started as a small architectural project is gaining momentum, a force to be reckoned with in the future development of Melbourne. McLeod’s project of ‘catalyzing an industry change from the ground up’ is certainly underway.
Overview
- Built 2017
Who
Architect
- Breathe Architecture
What
Type
- Residential
Where
Address
- Nightingale Housing 1, 6 Florence St, Brunswick VIC 3056, Australien














