T-Husene
A green folded space with multiple elevations on top of a commercial space is sliced open by the insertion of five rotated, dancing towers.

Steven Holl Architects presented in 2012 the design for T-Husene (the T-Houses) located in the Ørestad area of southern Copenhagen.
With this project, Steven Holl Architects sets a new example for residential typologies based on the concept of urban porosity. Leaving behind the standard typology of residential perimeter blocks, the dancing Ts with colored and reflective undersides carve the sky within the green folded space.
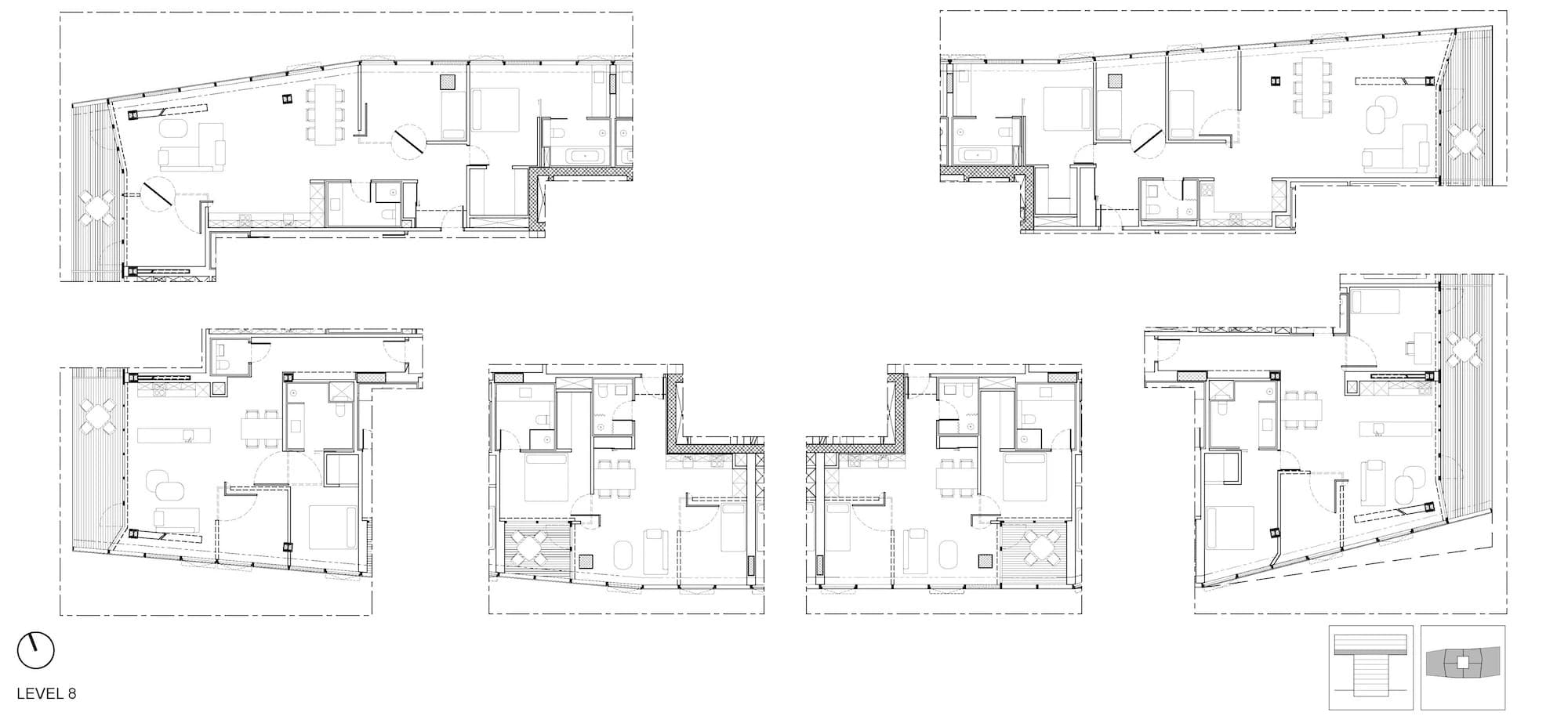
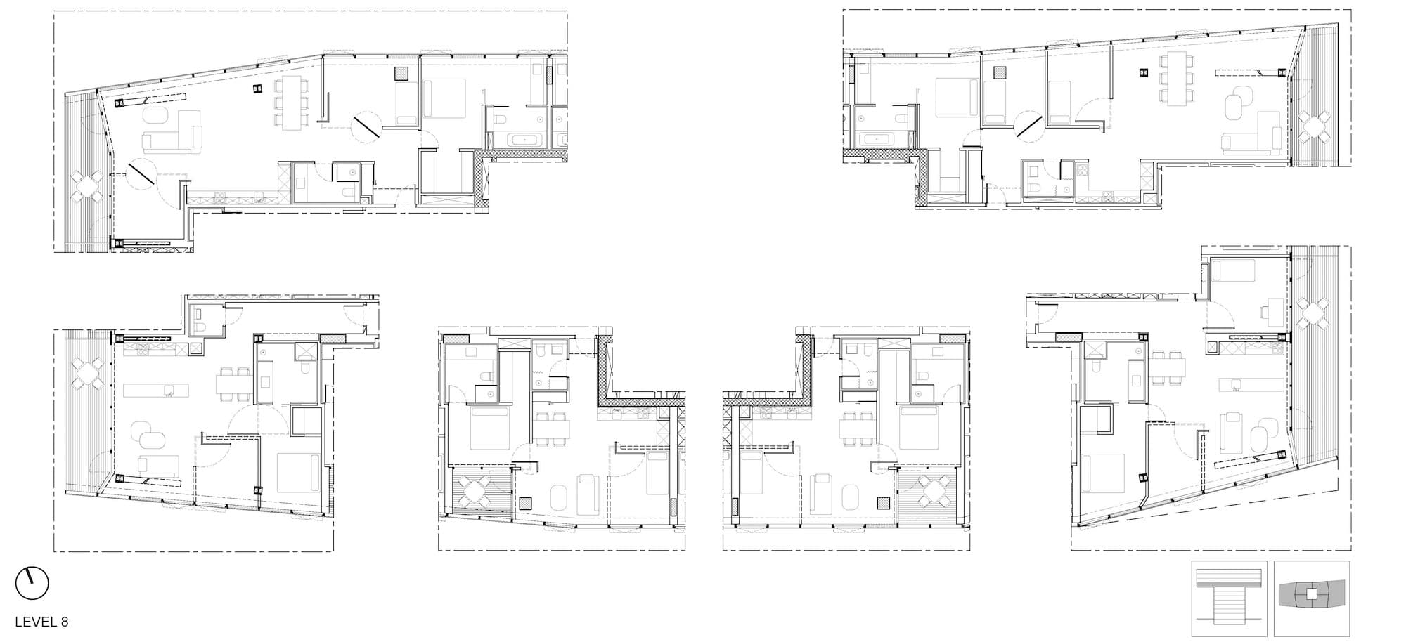
Inspired by twilight and the Scandinavian sky, the T-shaped buildings maximize high-quality residential floor space with views to the horizon and sunset. Building downward from the maximum height level and taking into consideration the maximization of views, each tower will contain 50 apartments in 22 different configurations.
"We wanted to create a sense of autonomy, individuation, and particularity for each apartment and tower. One of the failures of modern housing comes from the lack of individualization. Concepts should not be based on the mass, but on individuals. We aim for an architecture that is in connection to each human being. Therefore, new typologies need to be created, of which the dancing Ts are an example."
At the same time, the commercial area's environment of productivity is improved by the green folded landscape, allowing the nature reserve to flow from the Amager Fælled nature preserve through Ørestad and to the green square in the east.
High-quality natural materials and sustainable solutions for future challenges will be an integral part of the project.
Ørestad is a new area located less than ten minutes away from historic Copenhagen by metro, close to Scandinavia’s main airport, and connected directly to Malmö in Sweden.
Overview
- Built 2012
Who
Architect
- Steven Holl Architects
What
Type
- Residential
Where
Place
- Copenhagen, Ørestad















