Værktøjskassen: Arkitektens arbejdsredskaber
Arkitekter anvender forskellige værktøjer til at forme og udvikle deres idéer. Fra håndtegnede skitser til avancerede 3D-modeller føres arkitekturen fra idé til virkelighed.
Af Dansk Arkitektur Center

Arkitekttegninger
Arkitektens tegninger er et arbejdsredskab, der skal hjælpe arkitekten med at klargøre for sig selv og andre, hvilken arkitektur der skal realiseres. De tegnes med forskellige formål.
Der findes tegninger, der skal vise arkitektens visioner og udtrykke den grundlæggende arkitektoniske idé. De bruges til at præsentere designet.
Andre tegninger skal tilfredsstille praktiske og tekniske krav. De skal fastholde mål og iagttagelser, som ingeniører og håndværkere kan følge på byggepladsen.
Arkitekttegningerne har ændret sig markant i de senere år med tilegnelsen af computeren som redskab. Næsten alle tegninger udføres elektronisk, da det er et krav fra regeringen, at alle byggerier for offentlige bygherrer skal afleveres som en 3D model.
Skitsen
Frihåndstegning bruger de fleste arkitekter i begyndelsen af designprocessen. En spontan og løst tegnet skitse til at fastholde de første ideer og indtryk. Kendt for sine dynamiske skitser var Erich Mendelsohn (1887-1953), der sammenfattede bygningens udtryk i skitsens form. Skitsen oversatte andre til arbejdstegninger, og skitsen blev den målestok, som de følgende projekteringer skulle holdes op imod.
Et helt kunstværk er Jørn Utzons tegning til Sydney Operaen, hvor nogle få buede streger viser den form, der senere blev operaens silhuet. Til at indøve skitseringsteknikker bruger mange arkitekter croquistegning. Croquistegning kræver en utrolig koncentration, idet man på få minutter skal opfange og fastholde modellens form.

Præsentationstegninger
For at give bygherren mulighed for at studere og forstå den kommende bygning udarbejder arkitekten en lang række tegninger, der viser bygninger fra forskellige perspektiver og med plantegninger, snit og facader.

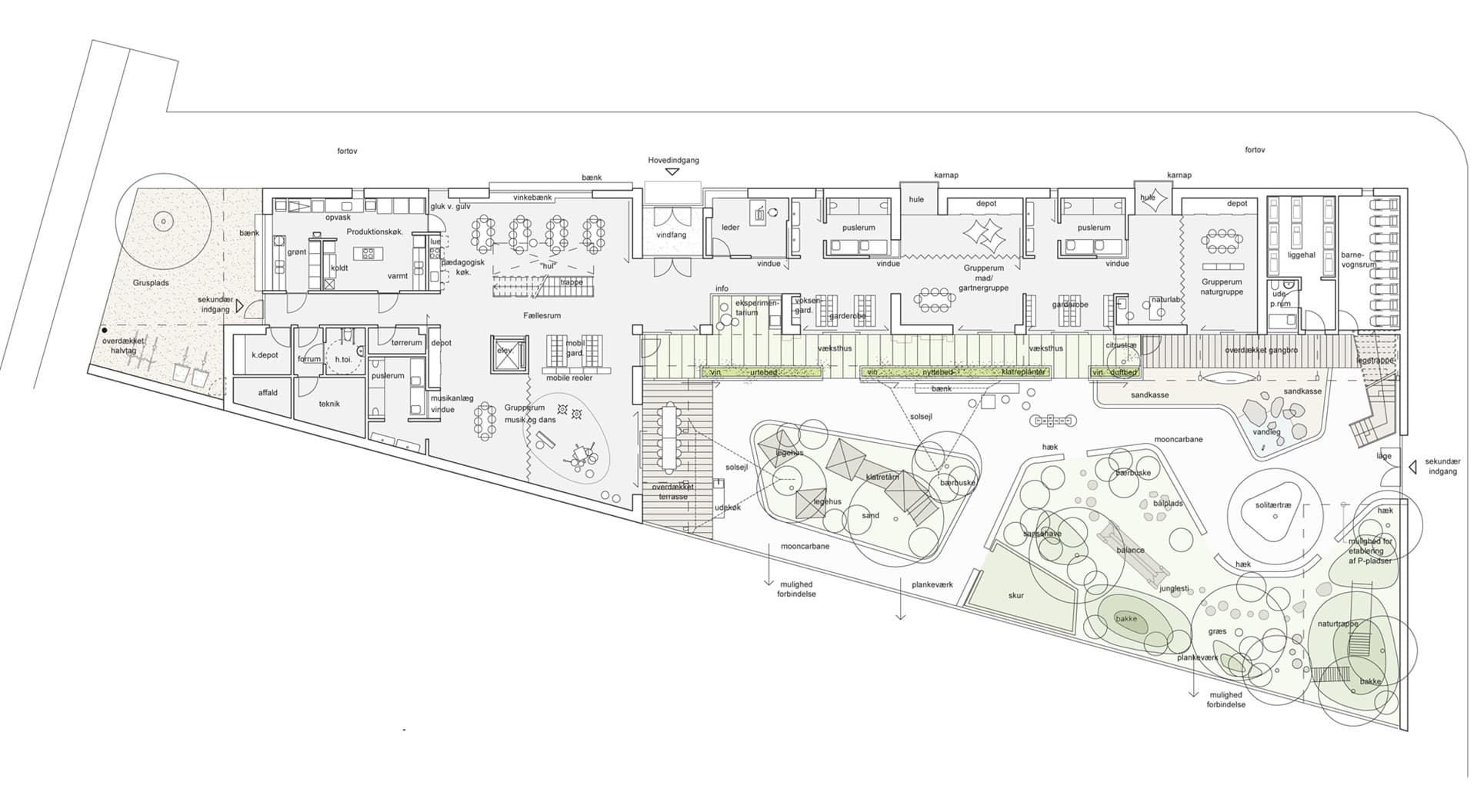
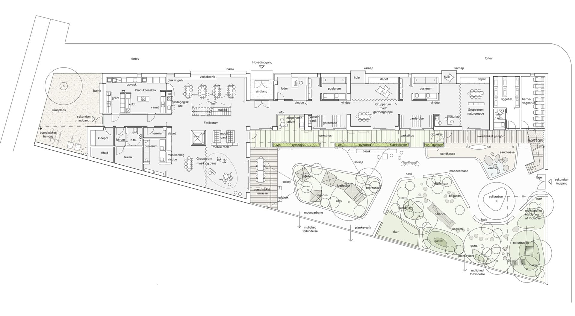
Plantegning
Plantegningen viser en bygning set fra oven, hvis man forestiller sig, at taget er fjernet. Hver etage tegnes for sig og man kan på plantegningen studere bygningens rum og deres placering og størrelse. Hvor er vinduer og døre, trapper og installationer placeret, og hvordan er rummene indrettet?

Snit
En snittegnings lodrette snit gennem en bygning gør det muligt at kikke ind i bygningens rum. Med et tværsnit kan man eksempelvis forklare antallet af etager i en bygning og med et længdesnit kan man studere rummenes forløb.

Facadetegning (også kaldet opstalt)
På facadetegninger kan man se bygningen udefra. Hvordan er facaden opbygget og hvilke elementer består den af?

Situationsplan
Planen viser bygningens placering, adgangsforhold, vej og sti systemer og forholdet til andre bygninger. Den kan samtidig vise udformningen af de nære omgivelser med beplantning, belægning, parkeringsforhold osv.

Målestoksforhold
Målestoksforhold er angivet på arkitekttegningerne, så man kan studere bygningernes skala.
Det typiske skalaforhold til plan, snit og facadetegninger er 1:100, hvilket vil sige, at en centimeter på tegningen svarer til en meter i virkeligheden.
Situationsplaner, hvor man får placeret bygningen i området er ofte 1:200 eller 1:500, mens detaljer tegnes i 1:20 eller 1:50.
Rumlige afbildninger
Arkitekterne vil ofte tegne rumlige afbildninger, så man bedre kan forestille sig arkitekturens tredimensionelle former og rum. Det kan være ved hjælp af perspektivtegninger af både bygningernes interiør og eksteriør, eller ved skråprojektioner. Det sker i dag næsten udelukkende på computeren.

Modeller
Arkitekterne kan også vise deres vision i en fysisk model fx i skala 1:100.
Modellen kan vise hele bygningen eller detaljer og udsnit. Typiske materialer er træ, gips, pap og hvidt polystyrenskum. Modellen har den klare fordel, at den i modsætning til tegningerne kan give en stoflig og fysisk oplevelse af bygningsværket. Men modellerne er også meget tidskrævende.

Computeren som værktøj
Med computeren har arkitekterne fået et nyt redskab i designprocessen. Et redskab, der gør det muligt at give et meget troværdigt billede af, hvordan en bygning eller et rum vil komme til at se ud eller virke. Arkitekter har altid brugt projektionstegninger eller modeller til at vise og vurdere en kommende bygning. Men den digitale model har ikke samme begrænsning som tegningen. Den kan på samme tid vise perspektiv, måles og animeres. Ny teknologi muliggør også en tredimensionel og interaktiv gengivelse af en bygning, hvor man kan få følelsen af at bevæge sig ind i modellens rum.

Når bygningen én gang er opbygget som 3D model, kan modellen vises fra alle tænkelige synsvinkler, farver ændres og modellen kan sættes i nye sammenhænge og så naturligvis animeres, så man kan bevæge sig rundt om og gennem bygningsvisionen.
En sådan model skaber en større indlevelse og arkitekter og ingeniører kan bedre analysere konstruktionen, hvilket kan styrke designet.
Modellen styrker også kommunikationen til bygherren, der nemmere kan aflæse projektet. Den interaktive models begrænsning er dog stadig manglen på det stoflige. Man kan ikke røre eller føle på computermodellen. De digitale modeller skal derfor ikke ses som en erstatning for de klassiske modeller, men som en udbygning af arkitekternes muligheder.
Frank Gehrys Guggenheimmuseum i Bilbao
Frank Gehrys Guggenheimmuseum i Bilbao er et eksempel på, hvordan de nye digitale redskaber har gjort det muligt, at skabe yderst komplicerede og fantasifulde former.

I designprocessen brugte Gehry 3D programmet CATIA, der var udviklet i forbindelse med fransk rumfartsindustri.
Med dette program kunne Gehry producere præcise tredimensionelle modeller af bygningens overflade og interiør og præcist beregne materialernes muligheder.
Modellerne kunne derefter sendes direkte til producenten med de eksakte oplysninger. Komplekse og kurvede overflader kunne computeren oversætte til materialer, der dermed kunne udvikles og også fremstilles relativt billigt. Computeren har gjort afstanden mellem den arkitektoniske idé og produktionen, konstruktionen og fabrikationen mindre.
Nye muligheder
Med computeren som værktøj er der åbnet mange nye muligheder. Arkitekter har fået større indblik i andres projekter og visioner.
På Internettet kan alverdens bygningsværker studeres, og kendskabet til materialer og konstruktionsteknikker udveksles.
Flere arkitekter arbejder med de nye muligheder uden en egentlig byggeopgave for øje. Der er kommet flere arkitekturfantasier med computerens indtog. Computermodeller udvikles som selvstændige virtuelle kunstværker.
Computeren kan i dag skildre langt mere komplekse rumformer og har en eminent regnekraft med flere trillioner kalkulationer per sekund. Det giver arkitekterne nye udfordringer og frisætter fantasien. Der eksperimenteres med nye former for geometri. I stedet for geometriske figurer som kuglen, keglen og pyramiden inspireres man af nye geometriske former som fx möbiusbåndet.

Arkitekten Jenny Nilsson har tegnet en pavillon udført som et Möbius til Vitabergsparken i Stockholm. Den består af trælameller holdt sammen af en kunststofbeklædning.
Möbiusbåndet blev opfundet af den tyske matematiker August Möbius (1790-1868). Båndet er kendetegnet ved kun, at have en flade, hvorved man kan bevæge sig fra ethvert punkt til et andet uden at passere en kant.
Det kan dannes ved, at man snor et rektangel en halv omgang og derefter sætter den sammen til en ring.
Farver
Både lys og farver er med til at forme et rum. Lys er afgørende for, hvordan vi ser farver. Når lyset ændrer sig i løbet af en dag, ændrer farverne i et rum eller en bygning sig også. Farver ser forskellige ud alt efter den sammenhæng, de indgår i.
Virkning
Nogle farver kan få en bygning til, at virke større, andre gør den mindre. Man kan få den til, at virke tung eller let, kølig eller varm, fjern eller nær, alt efter de farver man giver den.
Er et rum lille, kan man fx give det en lys farve, der får rummet til, at virke større og mere luftigt. Er rummet køligt, idet det kun får dagslys fra nord eller øst kan man give det “varme” med brug af farver i rødlige nuancer.
Stemning
Farvernes virkning har betydning for den stemning, man vil have frem i et rum. På Herlev Sygehus valgte arkitekterne, at få billedkunstneren Paul Gernes til at stå for farvesammensætningen. Man ønskede rum med varme og imødekommende farver. Ideen var, at farverne ville skabe en stemning, der kunne få en positiv effekt på folks helbred.

Markering
Farver kan fremhæve ideen med et rum. På Thorvaldsens Museum har arkitekt M.G. Bindesbøll arbejdet med markante og vekslende udtryk til de forskellige rum. Overgangen fra et rum til et andet markeres både med forskellige terrazzogulve og med væggenes varierende farver.

Ind
Farver kan bruges til at fremhæve arkitekturens sammensætning, dekoration og form, hvilket ses på Paladsteateret i København. Bygningen er fra 1918 og oprindelig hvid, men blev udsmykket af Poul Gernes i 1988. Fantasifuldt eller forargeligt? Meningerne er delte. Farvevalget er her frækt og udfordrende og vækker opmærksomhed i gadebilledet.

I 1800-tallet opdagede man, at de klassiske hvide marmortempler i Grækenland også engang har været mangefarvede, hvilket kom som et chok.
Sammenhæng
Vælger man at bygge med det omgivne landskabs materialer, vil bygningernes farver harmonere med områdets. Vil man skabe sammenhæng med den øvrige bebyggelse i byrummet, kan man ligeledes afstemme sine farver med de omkringliggende huse. Et smukt eksempel på det er Ildebrandshusene i København, hvor bygningerne ved Gråbrødretorv står med fine variationer i rød.

Mere fra DAC Magazine
DAC Magazine
Jan Gehl: Gode byer skal føles som én stor krammer

Hun blaffede til Italien for at lære af de bedste billedhuggere. Nu passer hun på de danske slotte

Video: En landsby vokser frem i Amazonas og viser, hvordan natur og arkitektur smelter sammen

Ud af skyggen: Byens grønne rum er blevet lige så vigtige som bygningerne